Promotion
-
26 Apr
#ฟรี แอร์ ม่านทั้งหลัง*
#ฟรี ค่าใช้จ่าย ณ วันโอน*
ข้อมูลโครงการ
แกรนดิโอ ฟิวเจอร์ - รังสิต ✦ ความโดดเด่นครั้งใหม่ กับสังคมคุณภาพใกล้เมือง ออกแบบตัวบ้านได้อย่างมีเอกลักษณ์ Curves and Straight เส้นสายที่เปี่ยมด้วยพลัง Classic and Modern คงความงดงามตลอดกาล Elegance and Simplicity เรียบหรูและสง่างาม พร้อมฟังก์ชั่นที่รองรับการใช้ชีวิตขั้นกว่า
♦ CLASS OF FUNCTION ♦ การออกแบบที่จัดสรรฟังก์ชั่นได้เหมาะสมลงตัวห้องนอนพร้อมห้องน้ำในตัวทุกห้อง Family area ขนาดใหญ่ พิเศษด้วยห้องซักรีด ห้องอเนกประสงค์ชั้นล่าง ที่สามารถปรับเปลี่ยนเป็นห้องออกกำลังกายได้ มาพร้อมกับสระว่ายน้ำส่วนตัว*
♦ CLASS OF FACILITIES ♦ สิ่งอำนวยความสะดวกครบครัน ในบรรยากาศหรูที่แวดล้อมด้วยสถาปัตยกรรม NEW ART DECO คลับเฮ้าส์ขนาดใหญ่ ฟิตเนส สระว่ายน้ำ พร้อมระบบรักษาความปลอดภัย
♦ CLASS OF LOCATION ♦ สะดวกยิ่งกว่า กับทำเลศักยภาพ เดินทางสะดวก ใกล้จุดขึ้น-ลงทางด่วน เชื่อมต่อสู่ใจกลางเมือง รวมถึงสิ่งอำนวยความสะดวกที่มากมาย ครบครัน
บักกิงแฮม
พื้นที่ใช้สอย 320 ตร.ม. 5 ห้องนอน 5 ห้องน้ำ ห้องรับแขก, ห้องรับประทานอาหาร ฟังก์ชันพิเศษ ห้องพระ และที่จอดรถ 3 คัน
Functions

แลงคาสเตอร์
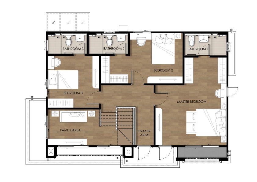
4 ห้องนอน / 5 ห้องน้ำ / ส่วนพักผ่อน / ห้องพระ / ห้องรับประทานอาหาร พื้นที่อเนกประสงค์ / ห้องครัว / Laundry room / ที่จอดรถ 3 คัน
Functions

เคนซิงตัน
พื้นที่ใช้สอย 251 ตร.ม. 5 ห้องนอน 5 ห้องน้ำ ห้องรับแขก, ห้องรับประทานอาหาร ฟังก์ชันพิเศษ ห้องพระ และที่จอดรถ 2 คัน
Functions

เมย์ฟิลล์
4 ห้องนอน / 4 ห้องน้ำ / ส่วนพักผ่อน / ห้องพระ / ห้องรับประทานอาหาร พื้นที่อเนกประสงค์ / ห้องครัว / Laundry room / ที่จอดรถ 3 คัน
Functions

วินด์เซอร์
พื้นที่ใช้สอย 216 ตร.ม. 4 ห้องนอน 4 ห้องน้ำ ห้องรับแขก, ห้องรับประทานอาหาร ฟังก์ชันพิเศษ ห้องพระ และที่จอดรถ 2 คัน
Functions

ซัมเมอร์เซต
4 ห้องนอน 4 ห้องน้ำ , สวนพักผ่อน , ห้องพระ , ห้องรับประทานอาหาร , พื้นที่อเนกประสงค์ ห้องครัว , Laundry room , ที่จอดรถ 2 คัน
Functions













