Promotion
-
26 Apr
ข้อมูลโครงการ
จากทุ่งลาเวนเดอร์ในฤดูร้อน ณ เมือง AIX-EN-PROVENCE (เอ็ก-ซอง-โพรวองซ์) ประเทศฝรั่งเศส
ผสานกับสถานิตยกรรมปารีสสมัยใหม่ โดดเด่นคลาสสิคเหนือกาลเวลา
Main Gate วิจิตรบรรจงในทุกรายละเอียดตั้งแต่ทางเข้า ด้วยกลิ่นอายแบบโบซาร์
Clubhouse จากภาพในจินตนาการสู่ความงดงามที่เป็นจริงของทุ่งดอกลาเวนเดอร์ในฤดูร้อน
ได้ถูกถ่ายทอดทุกรายละเอียด สู่การออกแบบพื้นที่ส่วนกลาง
ในคอนเซป Maison de Lavande (House of Lavender)
คลับเฮาส์หรูขนาดใหญ่ เพียบพร้อมด้วยสิ่งอำนวยความสะดวก
โอบล้อมด้วยสวนสวยและน้ำพุ ผ่อนคลาย ได้พบกับสุนทรียภาพ ใกล้ชิดธรรมชาติได้ในทุกวัน
.
Luxury Homes ระดับพรีเมียม ดีไซน์รูปแบบใหม่ Modern European Style ตอบโจทย์การอยู่อาศัยหลากหลายฟังก์ชัน
ใส่ใจทุกรายละเอียดการออกแบบ เพื่อรองรับในทุกมิติของการใช้ชีวิตของคนในครอบครัว
ลาวองด์
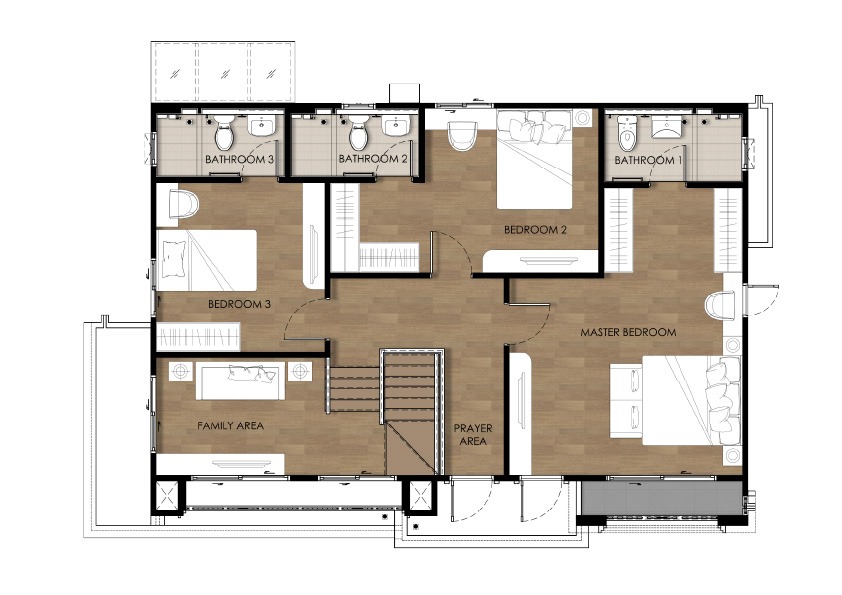
บ้านเดี่ยว พื้นที่ใช้สอยรวม 306 ตร.ม. 4 ห้องนอน 5 ห้องน้ำ Family Living Room , ห้องพระ , Multipurpose room , ห้องรับประทานอาหาร , ห้องครัว , Glass House , ห้องแม่บ้าน และที่จอดรถ 3 คัน
Functions

มูเกท์
บ้านเดี่ยว พื้นที่ใช้สอยรวม 258 ตร.ม. 4 ห้องนอน 5 ห้องน้ำ Family Living Room , ห้องพระ , ห้องรับประทานอาหาร , ห้องครัว , Glass House , ห้องแม่บ้าน และที่จอดรถ 3 คัน
Functions

ซูส์ซี่
บ้านเดี่ยว พื้นที่ใช้สอยรวม 216 ตร.ม. 3 ห้องนอน 4 ห้องน้ำ Working Room , ห้องพระ , ห้องรับแขก , ห้องรับประทานอาหาร , ห้องครัว , Glass House Laundry และที่จอดรถ 2 คัน
Functions







